Электропривод ВПК
Электропривод ВПК неполноповоротный изготовлен во взрывобезопасном исполнении. Используется в сложных условиях на предприятиях повышенной опасности: нефтегазодобывающих, металлургических, химических, горнодобывающей, а также в сфере водоснабжения: ЖКХ, морских судах и т.д.
Электропривод ВПК изготовлен с высокой степенью герметичности рабочих механических и электрических частей. В его конструкции используются детали из легированной стали с высокими механическими свойствами:
- износостойкости;
- работа при температурах в диапазоне 80-100 ºС;
- ударостойкость;
- работа при низких t ниже -60-70 или выше +60.
Усиленная изоляция, закрытая конструкция позволяют эксплуатировать устройство в условиях:
- высокой запыленности;
- вибрации;
- воздействии агрессивных сред.
Основное назначение электропривода – дистанционное управление запорной арматурой однооборотной:
- шаровыми кранами;
- затворами;
- дисками.
Интеллектуальное управление электропривода ВПК позволяет:
1. Устанавливать настройки по нужным параметрам, исключая аварийные ситуации;
2. Устанавливать системы датчиков, контролируя уровень, температуру и давление потока вещества;
3. Управлять одновременно несколькими потоками, рабочими точками и визуализировать данные.
Изготовление под заказ электропривод ВПК оптимизирует стоимость благодаря наличию указанных параметров.
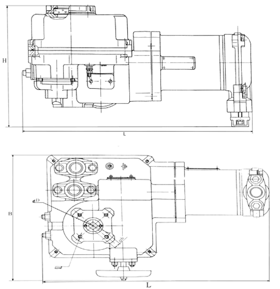
Схема и габаритные размеры электропривода типа ВПК
dd
Типы и тех. характеристики электроприводов ВПК
| Тип электропривода | Обозначение | Диапазон крутящего момента в Н-м на выходном валу | Частота вращения выходного вала, об/мин | Число оборотов выходного вала электропривода, для закрывания (открывания) арматуры | Мощность эл/дв привода, кВт | Масса, кг | |
|---|---|---|---|---|---|---|---|
| min | max | ||||||
| Электропривод ВПК-50-С-3 | ВПК-50-С-3 | 50 | 5 | - | - | 0.09 | 16 |
| Электропривод ВПК-50-С-11 | ВПК-50-С-11 | 50 | 1.4 | - | - | 0.09 | 16 |
| Электропривод ВПК-150-С-3 | ВПК-150-С-3 | 150 | 5 | - | - | 0.18 | 18 |
| Электропривод ВПК-150-С-22 | ВПК-150-С-22 | 150 | 0.7 | - | - | 0.09 | 18 |
| Электропривод ВПК-250-С-40 | ВПК-250-С-40 | 250 | 0.5 | - | - | 0.09 | 25 |
| Электропривод ВПК-630-С-25 | ВПК-630-С-25 | 630 | 0.6 | - | - | 0.12 | 50 |
| Электропривод ВПК-1000-С-25 | ВПК-1000-С-25 | 1000 | 0.6 | - | - | 0.18 | 52 |
Для того чтобы сделать заказ на Электропривод ВПК в городе Ростове обратитесь к нашим менеджерам. Мы гарантируем своевременное производство и поставку электроприводов в Ростове из Тулы.
