Электропривод НА
Электропривод НА применяется в области управляющего элемента запорных арматур. Контроль может происходить ручным способом и дистанционным в том числе. НА электроприводы нужны для того, чтобы работать в повторно-кратковременных интервалах. Рекомендуется включать такой электропривод с длительностью 25%. Осуществить работу электрического двигателя от привода НА, можно через сеть с переменным током, что имеет стандартную частоту 50-60 Гц, с напряжением 220-660В. Обычно это выбирается при покупке, но если спецификаций и особых требований на электропривод на не было, то потребляется стандартный тип напряжения 380В, имеющий частоту 50 Гц. Устанавливаться электроприводы типа А способны как в помещениях, так и под навесами, разными сооружениями, открытым небом. Причём они могут быть установлены в нужном положении по трубопроводу.
Основные функции электроприводов типа НА
С помощью электропривода можно:
- Закрыть и открыть проход арматур при помощи управляющего пульта.
- Также можно остановить запорные устройства арматур в любых положениях.
- В автоматическом режиме отключать электродвигатель муфтой, которая ограничивает крутящий момент, когда достигнуто заданное значение.
- Сигнализировать о крайнем положении запорных устройств арматуры на пульт, а также о том, что сработала муфта, когда крутящийся момент ограничен.
- В автоматическом режиме производить выключение электрического двигателя, когда запорное устройство арматуры достигает крайнего положения.
- Указывать крайние и промежуточные положения запорных устройств на местной шкале.
- Указывать крайний радиус при открытии прохода арматур на управляющем дисплее (если есть датчик).
- В автоматическом режиме переключить электропривод в положение ручного управления или электрического.
- Электрически задавать блокирование электропривода, когда работают прочие механизмы и агрегаты.
Состав электропривода НА
Такой электропривод включает в себя следующие детали и основные узлы:
- Электродвигатель.
- Планетарный редуктор.
- Узел путевого выключателя.
- Узел моментной муфты.
- Узел ручного дублера и маховик.
- Выходной вал с квадратом или кулачком.
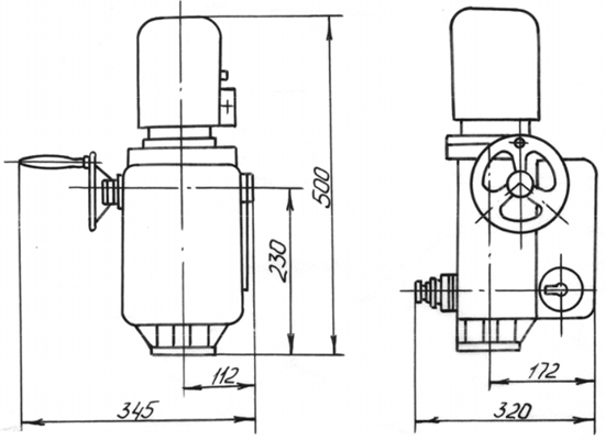
Схема и основные размеры электропривода НА

Чтобы создавать герметичность внутренней полости электропривода, в подвижном и неподвижном соединении, существуют предназначенные для этого приспособления. Поставка электропривода НА происходит со всей документацией, включая сертификат на соответствие и заводскую упаковку.
Где купить электроприводы НА
Вы можете купить электроприводы НА в компании ЭлектроПрибор, которая является производителем этого типа приводов. Мы предлагаем только высококачественные электроприводы от производителя, которые соответствуют всем стандартам и имеет официальную гарантию. Сделать заказ на электропривод и узнать подробности можно любым удобным для вас способом.
Наиболее распространенные типы электроприводов НА:
Для чугунных задвижек (30ч906бр) или стальных задвижек (30с941нж) диаметром (Dy,мм), как правило, применяются следующие типы электроприводов:
- для Dy 50, 80, 100 применяют электропривод НА-04 или электропривод НА-05;
- для Dy 150 применяют электропривод НА-10.
Каталог электроприводов НА
Более детальную информацию о электроприводах НА серии вы найдете в нашем каталоге в PDF формате.
Типы и тех. характеристики электроприводов НА
| Тип электропривода | Обозначение | Диапазон крутящего момента в Н-м на выходном валу | Частота вращения выходного вала, об/мин | Число оборотов выходного вала электропривода, для закрывания (открывания) арматуры | Мощность эл/дв привода, кВт | Масса, кг | |
|---|---|---|---|---|---|---|---|
| min | max | ||||||
| Электропривод НА 01 | ТЭ099.058-01М | 25-60 | 12 | 1 | 10 | 0.18 | 17 |
| Электропривод НА 02 | ТЭ099.058-02М | 25-60 | 24 | 1 | 10 | 0.25 | 17 |
| Электропривод НА 04 | ТЭ099.058-04М | 25-60 | 12 | 10 | 45 | 0.18 | 17 |
| Электропривод НА 05 | ТЭ099.058-05М | 25-60 | 24 | 10 | 45 | 0.25 | 17 |
| Электропривод НА 07 | ТЭ099.058-07М | 60-100 | 12 | 1 | 10 | 0,18-0,25 | 17 |
| Электропривод НА 08 | ТЭ099.058-08М | 60-100 | 24 | 1 | 10 | 0.25 | 17 |
| Электропривод НА 10 | ТЭ099.058-10М | 60-100 | 12 | 10 | 45 | 0,18-0,25 | 17 |
| Электропривод НА 11 | ТЭ099.058-11М | 60-100 | 24 | 10 | 45 | 0.25 | 17 |
| Электропривод НА 12 | ТЭ099.058-12М | 25-60 | 12 | - | 1 | 0.18 | 17 |
| Электропривод НА 13 | ТЭ099.058-13М | 60-100 | 12 | - | 1 | 0.18 | 17 |
| Электропривод НА 14 | ТЭ099.058-14М | 60-100 | 48 | 10 | 45 | 0,37-0,55 | 17 |
| Электропривод НА 15 | ТЭ099.058-15М | 10-35 | 12 | 1 | 10 | 0.18 | 17 |
| Электропривод НА 16 | ТЭ099.058-16М | 10-35 | 24 | 1 | 10 | 0.25 | 17 |
| Электропривод НА 17 | ТЭ099.058-17М1 | 25-60 | 12 | 0.2 | 50 | 0.18 | 17 |
| Электропривод НА 18 | ТЭ099.058-18М1 | 25-60 | 24 | 0.2 | 50 | 0.25 | 17 |
| Электропривод НА 19 | ТЭ099.058-19М1 | 60-100 | 12 | 0.2 | 50 | 0.25 | 17 |
| Электропривод НА 20 | ТЭ099.058-20М1 | 60-100 | 24 | 0.2 | 50 | 0.25 | 17 |
| Электропривод НА 21 | ТЭ099.058-21М1 | 60-100 | 48 | 0.2 | 50 | 0.55 | 17 |
| Электропривод НА 22 | ТЭ099.058-22М1 | 10-35 | 12 | 0.2 | 50 | 0.18 | 17 |
| Электропривод НА 23 | ТЭ099.058-23М1 | 10-35 | 24 | 0.2 | 50 | 0.25 | 17 |
Для того чтобы сделать заказ на Электропривод НА в городе Ростове обратитесь к нашим менеджерам. Мы гарантируем своевременное производство и поставку электроприводов в Ростове из Тулы.
